Submission Drawing Checklist for Architects and Engineers β Complete Guide
Submission Drawing Checklist for Architects and Engineers (Complete Guide) Introduction Submission drawings constitute a crucial part of the building approval […]
Submission Drawing Checklist for Architects and Engineers (Complete Guide) Introduction Submission drawings constitute a crucial part of the building approval […]
RCC Staircase Section Design with Reinforcement Details | A Comprehensive Guide for a 3β-3β Wide Staircase Introduction This document presents
π Staircase Design and Section Details (Plan + Structural Specifications) Introduction A well-designed staircase is not merely a functional element,
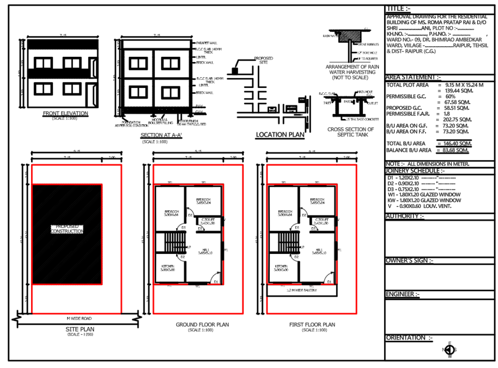
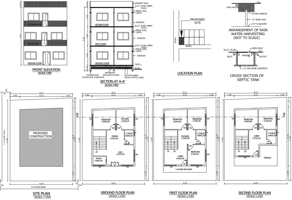
Example of a 30Γ50 House Submission Drawing (For Plan Approval) Introduction Designing a 30Γ50 House Submission Drawing (on a 1,500
AutoCAD Layer Standards for Professional Submission Drawings Introduction In architectural and civil engineering projects, AutoCAD layer standards play a crucial
10 Common Mistakes in Submission Drawings and How to Avoid Them Introduction It is well known that submission drawings play
Essential Notes to Include in Submission Drawings (A Complete Guide) Introduction Our submission drawings comprise not merely plans, elevations, and
Section Drawings for Building Submission β Essential Details Introduction The section drawing constitutes one of the most critical components of
How to Prepare Elevation Drawings for Building Approval (A Complete Guide) Introduction Elevation drawings are one of the most crucial
ποΈ Explanation of Building Plan Approval Rules and Bye-laws (A Complete Guide) Introduction Obtaining approval for a Building Plan Approval
MS Design Hub is an architecture blog where you can explore modern house design ideas, floor plans, elevation designs and architecture inspiration.
Our goal is to provide useful design ideas and planning tips for homeowners, architects and civil engineering students.
MS Design Hub is a creative design studio delivering modern architecture and interior solutions. We create functional, elegant, and customized spaces.