Submission Drawing Checklist for Architects and Engineers – Complete Guide

Submission Drawing Checklist for Architects and Engineers (Complete Guide)

Introduction

Submission drawings constitute a crucial part of the building approval process. Whether you are an architect, a civil engineer, or a designer, having a comprehensive checklist ensures that your drawings are accurate, compliant with regulations, and receive prompt approval from the authorities.

In this guide, we provide a complete checklist for submission drawings, designed to help you avoid drawing rejections and streamline the approval process.

Submission Drawing Checklist for Architects and Engineers

What are Submission Drawings?

Submission drawings are a set of technical drawings submitted to local authorities for approval before construction work begins. It is mandatory for these drawings to comply with building by-laws, zoning regulations, and safety standards.

Why Is a Checklist Important?

A proper checklist helps:

  • Avoid missing critical details
  • Ensure compliance with regulations
  • Reduce approval delays
  • Improve drawing quality and clarity

Complete Submission Drawing Checklist

1. Basic Project Information

Ensure the following details are clearly mentioned:

  • Project title and type (Residential/Commercial)
  • Owner’s name and details
  • Architect/Engineer name, license number
  • Site address and location
  • Drawing number and revision details
  • Scale of drawing

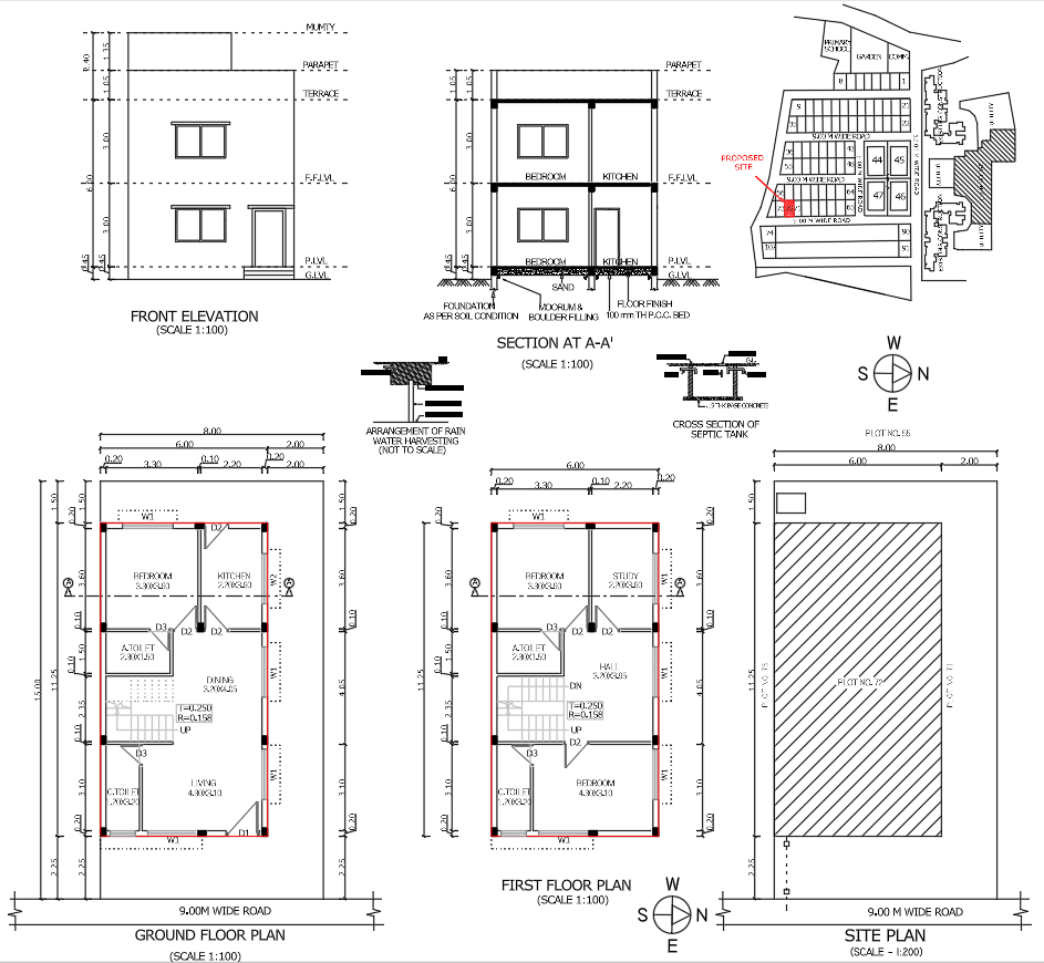
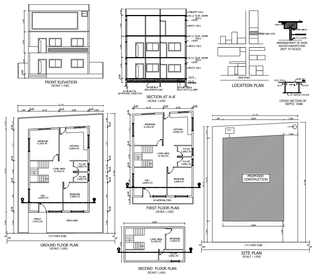
2. Site Plan Checklist

The site plan is one of the most important drawings.

Include:

  • Plot boundaries with dimensions
  • North direction
  • Road width and access points
  • Setbacks (front, rear, side)
  • Existing structures (if any)
  • Parking layout
  • Drainage and sewer lines
  • Water supply connection
  • Landscape details

3. Building Plan (Floor Plan) Checklist

Each floor plan must show:

  • Wall thickness and layout
  • Room names and sizes
  • Door and window positions
  • Staircase details
  • Lift (if applicable)
  • Ventilation and lighting provisions
  • Furniture layout (optional but useful)
  • Dimensions (clear and readable)

4. Elevation Drawing Checklist

Elevation drawings should include:

  • Front, rear, and side elevations
  • Building height
  • Floor levels
  • Architectural features
  • External finishes
  • Ground level and plinth level

5. Section Drawing Checklist

Sections provide internal details of the building.

Must include:

  • Foundation details
  • Plinth level
  • Floor heights
  • Slab thickness
  • Staircase section
  • Roof structure
  • Natural ground level (NGL) and finished floor level (FFL)

6. Structural Drawing Checklist

Required for safety and stability:

  • Foundation layout
  • Column layout
  • Beam and slab details
  • Reinforcement details
  • Structural notes and specifications

7. Services Drawings Checklist

Include basic service layouts:

  • Electrical Plan
  • Light points
  • Switches
  • Distribution board
  • Plumbing Plan
  • Water supply lines
  • Drainage layout
  • Septic tank/soak pit
  • Fire Safety Plan (if required)
  • Fire exits
  • Extinguishers
  • Staircase width compliance

8. Area Statement & Calculations

Clearly mention:

  • Plot area
  • Built-up area
  • Floor-wise area
  • FSI/FAR calculation
  • Ground coverage
  • Parking calculations
building plan drawings

9. Required Documents Checklist

Attach the following documents:

  • Ownership proof
  • Site photographs
  • Previous approvals (if any)
  • Structural stability certificate
  • Soil test report (if required)
  • NOC from relevant authorities

10. Drawing Presentation Checklist

Ensure professional quality:

  • Proper line weights
  • Standard symbols
  • Legible text size
  • Clean layout
  • Consistent scales
  • Title block with all details

 

11. Compliance Checklist

Verify:

  • Local building bye-laws followed
  • Zoning regulations met
  • Height restrictions
  • Setback rules
  • Parking norms
  • Fire safety rules

Common Mistakes to Avoid

  • Missing dimensions
  • Incorrect setbacks
  • No north direction
  • Poor layer management in CAD
  • Incomplete structural details
  • Mismatch between drawings

Pro Tips for Faster Approval

  • Always cross-check with local authority guidelines
  • Use standard CAD templates
  • Maintain proper layer naming
  • Double-check calculations
  • Keep drawings simple and clear

Conclusion

A well-crafted submission drawing checklist ensures accuracy, regulatory compliance, and expedited approval. By adhering to this checklist, architects and engineers can minimize errors, avoid rework, and deliver professional-quality drawings.

Submission drawings are a set of technical drawings submitted to local authorities for building approval. They include plans, elevations, sections, and service layouts required before construction starts.

Submission drawings are prepared by:

  • Architects
  • Civil Engineers
  • Licensed Building
  • Designers

They must be signed and approved by a registered professional.

Typically, submission drawings include:

  • Site plan
  • Floor plans
  • Elevations
  • Sections
  • Structural drawings
  • Electrical and plumbing layouts

 Submission drawings → Used for approval from authorities
Working drawings → Used for actual construction on site

Working drawings contain more detailed information than submission drawings.

A site plan shows:

  • Plot boundaries
  • Building position
  • Setbacks
  • Road access
  • Utilities

It helps authorities understand how the building fits on the plot.

Leave a Comment

Your email address will not be published. Required fields are marked *

Scroll to Top