What is a Submission Drawing

What is a Submission Drawing? (A Complete Guide for Architecture and Civil Projects)

Introduction

Today, we’ll learn what a submission drawing is. If you work in architecture or civil engineering, you’ve likely heard the term submission drawing. It’s one of the most important stages before construction begins. In this blog post, we’ll explain what a submission drawing is, including its purpose, types, components, process, and why it’s crucial for project approval.

Submission Drawing

What are submission drawings?

A drawing is a set of technical detail drawings prepared by an architect or civil engineer. These submission drawings are submitted to the local municipal authority or development authority for project approval before construction begins.

Submission drawings ensure that the proposed building complies with:-

  • Local building bylaws
  • Zoning regulations
  • Fire safety norms
  • Environmental guidelines
  • Structural safety standards

Without the approval of the submission drawings, construction work cannot legally begin.

Why are submission drawings important?

In this article, we’ll explain why submission drawings are important and their crucial role in the construction sector. Let’s explore why submission drawings are required for:-

  • Getting building plan approval
  • Getting construction permission
  • Applying for water and electricity connections
  • Getting a completion certificate
  • Applying for an occupancy certificate

They protect both the owner and the architect from legal issues and penalties.

Submission drawing site plan for building approval

Key Components of a Submission Drawing

A complete submission drawing consists of a set of proper elements, typically including:-

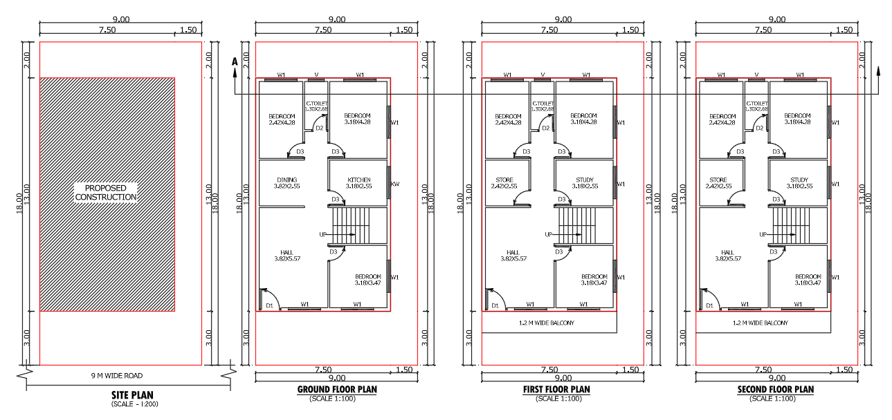
1. Site Plan

  • Plot Size
  • Road Width
  • North Direction
  • Setback
  • Parking Area
  • Drainage Layout

2. Floor Plan

  • Room Sizes
  • Wall Thickness
  • Door and Window Details
  • Built-Up Area Calculation

3. Elevation

  • Front Elevation
  • Side Elevation
  • Building Height
  • Ground Level and Plinth Level

4. Section

  • Sectional Details of the Building
  • Floor Elevation
  • Foundation Level

5. Area Statement

  • Plot Area
  • Ground Coverage
  • FAR (Floor Area Ratio)
  • Built-Up Area

6. Parking Layout

7. Service Drawings (if required)

  • Water Supply Layout
  • Drainage Layout
  • Electrical Layout
Front elevation submission drawing design

Types of Submission Drawings

  • Submission drawings there are different types depending on project stage:
  • Building Plan Submission Drawing – for approval of new construction
  • Revised Submission Drawing – if changes have been made to the approved plan
  • Completion Drawing – submitted after construction
  • Sanction Drawing – approved drawing stamped by the authority

Submission Drawing Process

Here is the step-by-step process:-

  • Site visit and measurement
  • Prepare architectural drawings
  • Check building bye-laws
  • Calculate FAR and setbacks
  • Submit drawings to authority
  • Scrutiny and verification
  • Approval and sanction
Location plan submission drawing in civil engineering

Who Prepares Submission Drawings?

Submission drawings are prepared by:-

  • Architect
  • Civil Engineer
  • Licensed Draftsman

In many states, only licensed professionals can submit drawings to the municipal corporation.

Common Mistakes in Submission Drawings

  1. Incorrect FAR calculation
  2. Wrong setback marking
  3. Missing parking details
  4. Improper scale
  5. Not following local bye-laws

These mistakes can delay approval.

Format plan submission drawing in civil engineering

Conclusion

Submission drawings are an essential part of any building project. They ensure that construction complies with legal regulations and safety standards. Without proper submission drawings, a project may not receive approval from authorities to begin.

If you are a civil engineering student, architect, or contractor, understanding submission drawings is essential for professional success.

A submission drawing is a set of architectural drawings submitted to local authorities for building plan approval before construction begins.

Submission drawings are required to get legal permission for construction and to ensure the building follows local bye-laws and safety regulations.

Submission drawings are prepared by licensed architects, civil engineers, or authorized draftsmen.

It usually includes a site plan, floor plan, elevation, section, area statement, parking layout, and basic service details.

A sanction drawing is the approved submission drawing stamped and signed by the municipal authority.

Leave a Comment

Your email address will not be published. Required fields are marked *

Scroll to Top