AutoCAD Layer Standards for Professional Submission Drawings

AutoCAD Layer Standards for Professional Submission Drawings

Introduction

In architectural and civil engineering projects, AutoCAD layer standards play a crucial role in creating clear, organized, and professional submission drawings. Whether you are preparing drawings for municipal approval or for client presentations, proper layer management ensures accuracy, legibility, and compliance with standards.

AutoCAD Layer Standards for Professional Submission Drawings

What Are AutoCAD Layers?

In AutoCAD, layers are like transparent sheets where different elements of a drawing are organized separately. Each layer can have its own specific properties:

  • Color
  • Line Type
  • Line Weight
  • Visibility Settings

This helps in efficiently managing complex drawings.

Why AutoCAD Layer Standards Are Important

Using standardized layers in submission drawings offers multiple benefits:

1. Better Drawing Organization

  • Keeps elements like walls, doors, text, and dimensions separate
  • Makes editing easier

2. Improved Readability

  • Different colors and line weights enhance clarity
  • Helps authorities quickly understand drawings

3. Faster Workflow

  • Reduces confusion during drafting
  • Saves time in revisions

4. Professional Presentation

  • Creates uniform and clean drawings
  • Essential for approvals and client trust

AutoCAD Layer Standards Naming Conventions

A consistent naming system is key for professional work. Use clear and descriptive names:

Recommended Format:
Discipline_Element_Type
Examples:

  • A-WALL
  • A-DOOR
  • A-WINDOW
  • A-TEXT
  • A-DIMS
  • S-COLUMN
  • S-BEAM
  • E-LIGHT
  • P-PIPE
Drawing layers

Typical AutoCAD Layer Standards Setup for Submission Drawings (Step-by-Step Guide)

Creating a proper layer setup in AutoCAD is essential for professional submission drawings. Follow this structured process to organize your drawings efficiently.

Step 1: Open Layer Properties Manager

  • Type LA in the command line
  • Press Enter
  • The Layer Properties Manager window will open

πŸ‘‰ This is where you will create and manage all layers.

Step 2: Create New Layers

  • Click on New Layer icon
  • Start creating layers one by one

Basic Layers to Create:

  • Wall
  • Door
  • Window
  • Column
  • Beam
  • Text
  • Dimension
  • Furniture
  • Hatch
  • Center Line
  • Hidden Line
  • Plot Boundary

Step 3: Apply Naming Convention

Use clear and professional naming:

Recommended Format:

  • A-WALL
  • A-DOOR
  • A-WINDOW
  • S-COLUMN
  • S-BEAM
  • A-TEXT
  • A-DIMS
  • F-FURNITURE
  • A-HATCH

πŸ‘‰ Prefix Meaning:

  • A = Architectural
  • S = Structural
  • E = Electrical
  • P = Plumbing

Step 4: Assign Colors to Layers

Assign different colors for clarity:

  • Wall β†’ Red
  • Door β†’ Yellow
  • Window β†’ Green
  • Column β†’ Cyan
  • Beam β†’ Blue
  • Text β†’ White
  • Dimension β†’ Magenta
  • Furniture β†’ Grey

πŸ‘‰ Colors help in visual clarity and plotting (CTB settings)

Step 5: Set Line Types

Assign appropriate line types:

  • Continuous β†’ Walls, Doors, Windows
  • Hidden β†’ Hidden elements
  • Center β†’ Center lines

πŸ‘‰ Load line types if not available:

  • Click Linetype β†’ Load β†’ Select (Hidden, Center)

Step 6: Set Line Weights

Define line thickness for plotting:

  • Walls / Columns β†’ 0.50 mm
  • Doors / Windows β†’ 0.35 mm
  • Furniture β†’ 0.25 mm
  • Text / Dimensions β†’ 0.18 mm

πŸ‘‰ This creates proper line hierarchy

Step 7: Set Current Layer

Select a layer (e.g., A-WALL)
Click Set Current

πŸ‘‰ Always draw objects on the correct layer.

Step 8: Organize Drawing Elements

Draw using correct layers:

  • Walls β†’ A-WALL
  • Doors β†’ A-DOOR
  • Windows β†’ A-WINDOW
  • Text β†’ A-TEXT
  • Dimensions β†’ A-DIMS

πŸ‘‰ Avoid mixing multiple elements in one layer.

Step 9: Use Layer Control Tools

Use these options effectively:

  • On/Off β†’ Show or hide layers
  • Freeze/Thaw β†’ Improve performance
  • Lock/Unlock β†’ Prevent editing

Step 10: Save as Template (.DWT)

Go to Save As
Select Drawing Template (*.dwt)
Save as: Submission_Layer_Standard.dwt

πŸ‘‰ This saves time for future projects.

Step 11: Check Before Submission

Before final plotting:

βœ” All elements are on correct layers
βœ” Line weights are properly assigned
βœ” Unused layers are removed
βœ” Text and dimensions are clear
βœ” Plot preview is checked

Color and Line Weight Standards

Common Practice:

  • Thick Lines (0.5 mm – 0.7 mm): Walls, columns
  • Medium Lines (0.3 mm – 0.4 mm): Doors, windows
  • Thin Lines (0.18 mm – 0.25 mm): Text, dimensions

Color Guidelines:

  • Use colors that convert properly in CTB plot styles
  • Maintain consistency across all drawings
CAD layer system

AutoCAD Layer Standards Management Best Practices

1. Use Layer Templates

  • Create a standard .dwt template file
  • Saves time in every project

2. Avoid Layer Overload

  • Don’t create unnecessary layers
  • Keep it simple and logical

3. Lock and Freeze Layers

  • Lock important layers to avoid accidental edits
  • Freeze unused layers for better performance

4. Use Layer States

  • Save different layer visibility settings
  • Helpful for plan, section, and elevation views

5. Maintain Discipline Separation

Separate layers for Architecture, Structure, Electrical, Plumbing

Common Mistakes to Avoid

❌ Using random layer names (Layer1, Layer2)
❌ Same color for all elements
❌ Ignoring line weights
❌ Mixing multiple elements in one layer
❌ Not using templates

AutoCAD Layer Standards for Different Drawings

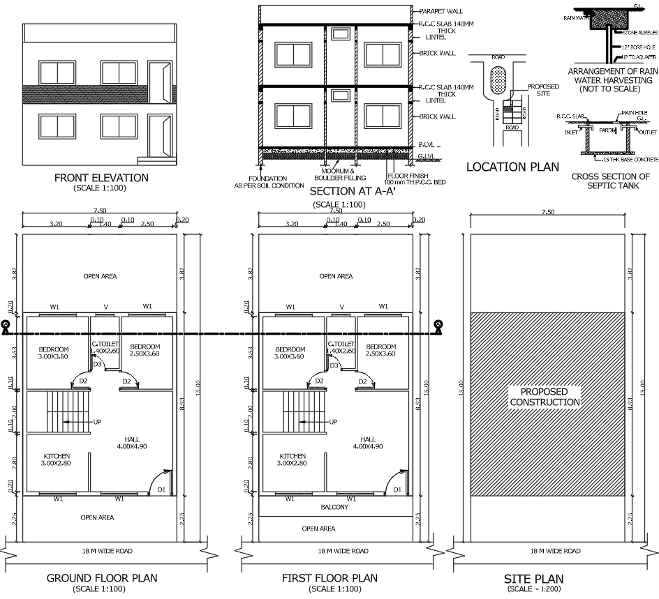
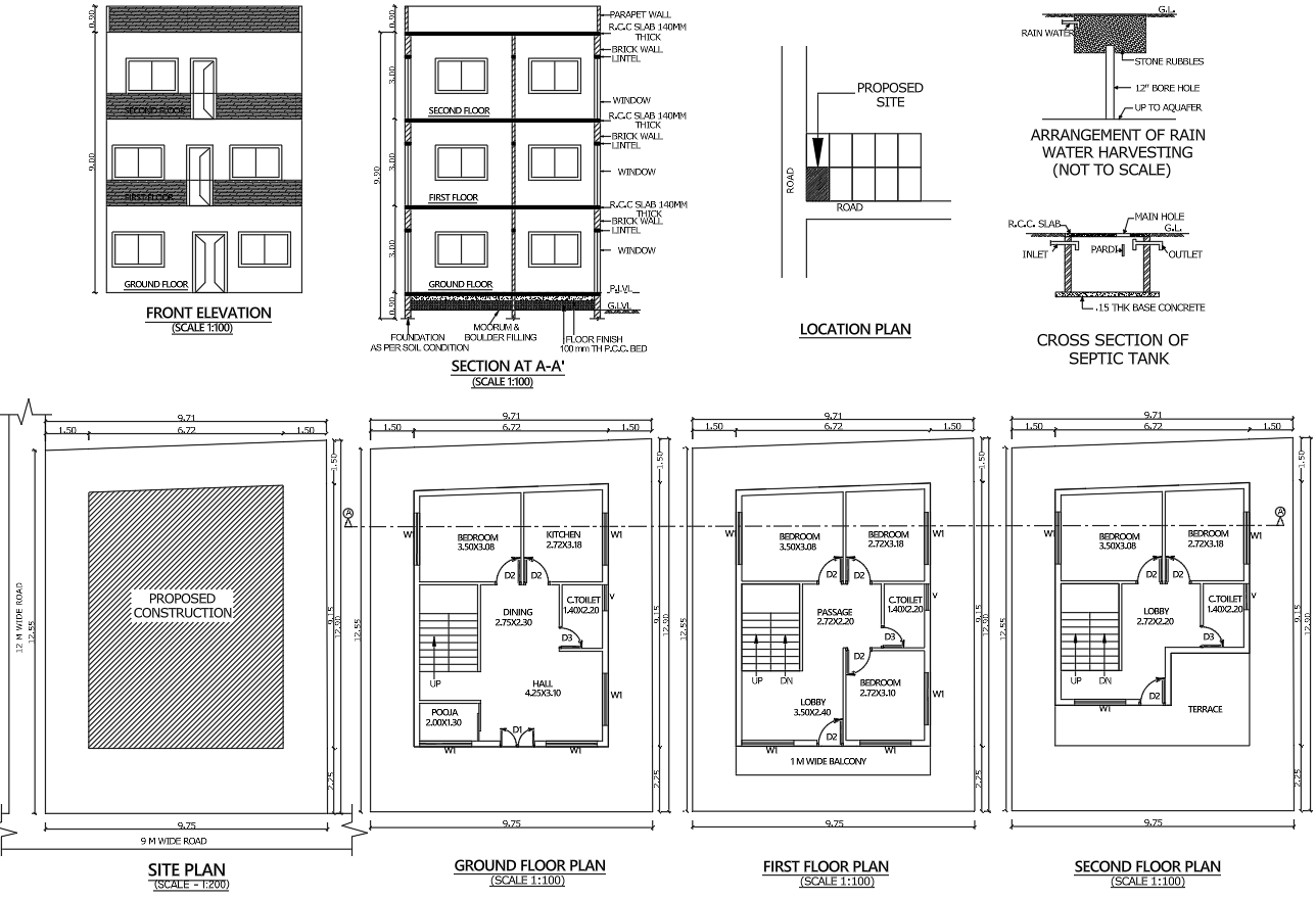
1. Floor Plans

Walls, doors, windows, furniture, dimensions

2. Elevations

External walls, levels, textures, annotations

3. Sections

Cut elements (thick lines), background elements (thin lines), hatching

4. Site Plans

Plot boundary, roads, landscaping, north direction

Tips for Submission Drawings Approval

  • Follow local authority guidelines
  • Maintain proper line hierarchy
  • Use readable text sizes
  • Keep layers clean and organized
  • Ensure proper plotting settings

Conclusion

AutoCAD layer standards serve as the backbone of professional submission drawings. A well-organized layer system not only enhances the quality of the drawings but also accelerates the approval process. By adhering to proper naming conventions, line weights, and management protocols, architects and engineers can consistently deliver accurate and high-quality drawings.

Leave a Comment

Your email address will not be published. Required fields are marked *

Scroll to Top